6080影院
  • 首页
  • 电影
    • 动作片
    • 爱情片
    • 科幻片
    • 恐怖片
    • 战争片
    • 喜剧片
    • 纪录片
    • 剧情片
  • 电视剧
    • 国产剧
    • 香港剧
    • 欧美剧
    • 韩剧
    • 台湾剧
    • 日剧
    • 泰剧
  • 综艺
  • 动漫
  • 留言
播放记录
敞开的房子

敞开的房子 豆瓣评分:3.5

超清
  • 分类:恐怖片
  • 导演:马特·安吉
  • 地区:美国
  • 年份:2018
  • 语言:英语
  • 更新:2022-10-28 06:53
报错 收藏
  • 敞开的房子是由迪兰·明奈特,阿隆·艾布拉姆斯,马特·安吉,沙利夫·阿特金斯,莱格·帕克,保罗·瑞,凯蒂·瓦德尔,Ethan,苏珊娜·寇特主演的一部恐怖片。 基地周边被大型住宅所占据,而业主则希望我们打造一个适当尺度的家。通过大面积的开敞区域以及与花园的.. 更多

敞开的房子剧情介绍

基地周边被大型住宅所占据,而业主则希望我们打造一个适当尺度的家。通过大面积的开敞区域以及与花园的紧密联系,这个适度大小的住宅显得宽敞而丰富。最终建成的住宅仅有附近房屋的一半大小,却在宜居性上毫不逊色。

▼从前院看向建筑,the exterior view from the garden

一个向自然敞开的小家——that住宅,澳大利亚"

一个向自然敞开的小家——that住宅,澳大利亚"

▼宽阔屋檐下的枫树,the maple tree encompassed by the eave

一个向自然敞开的小家——that住宅,澳大利亚"

世界上最大的住宅

the largest houses in the world.

澳大利亚有着世界上最大型的住宅。稳定的经济,野心勃勃的文化和相对平坦的地形使得澳大利亚人可以建造远超需要的住宅。墨尔本尤其是这样:开阔的地形、迅速增长的人口使得住宅从宜居区一直蔓延到了沙漠地带。为了给公众提供必需的基础设施和服务,如食物、饮水、电力、交通、医院和教育等,政府付出了高昂的代价,这一代价不仅仅是财政上的,还包括环境方面。庞大的住宅与澳大利亚城市气候是矛盾的,导致了供暖和冷气负荷的迅速增长。大型住宅以及随之造成的摊大饼式的城市发展导致对于私家车和相关的基础设施的依赖,这在目前是世界上最不环保的交通方式。而那些无法驾车出行的人群,如老人、小孩和残疾人等由于交通不便而处于被孤立的境地。在这些汽车川流不息的地方,步行和骑车也是危险的。

简而言之,大型住宅对于城市而言是一场灾难,对于我们的社区也同样是一场文化和社交的灾难。

▼面向庭院的书房,the study facing the front garden

一个向自然敞开的小家——that住宅,澳大利亚"

▼书房与客厅相连,也可以通过转动移动式隔墙成为一个独立的房间

一个向自然敞开的小家——that住宅,澳大利亚"

一个向自然敞开的小家——that住宅,澳大利亚"

一个向自然敞开的小家——that住宅,澳大利亚"

生活在社区中

living with community.

“我们(澳大利亚人)总是习惯于去私密场所而非公共场所,或是与社区里的其他人交流,而我认为这是错误的。”stuart white教授说道。

正如我们的许多很棒的业主一样,“that”住宅的业主急切的想要融入社区而非永久的将自己藏起来或是建一个堡垒。随着澳大利亚的住宅和文化变得越来越倾向于内向和保护性,建筑师反其道而行之。“that”住宅完全向公众和家人敞开自己。而与此同时,这个透明的住宅需要保持适度的私密性。因此我们在住宅上部设置了上升式百叶窗,让业主决定开敞的程度。你有多少次曾看见一个大落地窗,却被下降式百叶窗遮得密不透风?下降式百叶窗的缺点在于,除非你把它拉到底,否则你就无法保证私密性。而上升式的百叶窗则可以屏蔽来自街道的视线,却仍然可以望见花园和街道的景色。这使得人们可以自如的控制私密性的程度以及每个空间的光线。

▼开放的客厅,the living room with view of the rear garden

一个向自然敞开的小家——that住宅,澳大利亚"

一个向自然敞开的小家——that住宅,澳大利亚"

一个向自然敞开的小家——that住宅,澳大利亚"

一个向自然敞开的小家——that住宅,澳大利亚"

独处,相聚

alone, together.

我们大部分的作品都体现了“独处和相聚”的概念。用简单的话来说,我们希望在一个分享的空间里营造私密场所。我们绝非开放平面的忠实拥簇,但也反对将功能或是房间完全封闭的做法,而是试图在不同空间中创造宽松宜人的联系。“that”住宅表面上是开放的,但是内部的空间却可以打通、隔开或是半开放的。当家庭成员聚在客厅看卡通片的时候,也许有人想要独自在书房看会儿书,而另外两个人则想要围在餐桌旁讨论足球。全部人都在一个共享空间内,但是却不是一个嘈杂的开放空间,也不是一系列封闭的小隔间。“that”住宅使得家人们在任何时候都可以选择参与互动或是享受独处时光。

如果你的空间能够适应你的情绪、天气、时辰和用途,那么你就不会需要很多房间了。适应型的、复杂的空间使得我们可以在最大程度上利用我们的空间,而不需要一个庞大的建筑,并且可以有一个宽敞的户外空间和花园。

▼与餐厅相连的小客厅位于另一侧,the lounge on the other side

一个向自然敞开的小家——that住宅,澳大利亚"

▼起居空间与餐厅及厨房相连,the dining area next to the lounge

一个向自然敞开的小家——that住宅,澳大利亚"

一个向自然敞开的小家——that住宅,澳大利亚"

一个向自然敞开的小家——that住宅,澳大利亚"

一个向自然敞开的小家——that住宅,澳大利亚"

一个向自然敞开的小家——that住宅,澳大利亚"

对抗

defiance.

“that”住宅绝非一个小家。它既不是一个解决方案,也不是澳大利亚住宅的“新原型”。尽管位于环境之中,住宅却是对抗性的。“that”住宅是一个有意为之的设计,仅仅用了邻居一半的土地,却建造出了一个在空间、功能和品质方面丝毫不逊色的住宅。这种不满足或是担心有所遗漏的焦虑会带给人真正的恐惧。而好的设计和规划,适度尺度的房屋却不是折衷方案。事实上,带有与花园和自然充分接触的内部空间,一个精心设计的小住宅远胜于它周围那些臃肿不堪缺乏考虑的邻居们。

▼穿孔铝板制作的楼梯增添了轻盈的感觉,the stairs made from perforated alumni panel

一个向自然敞开的小家——that住宅,澳大利亚"

一个向自然敞开的小家——that住宅,澳大利亚"

▼带有落地窗的卧室,the bedroom with full height window

一个向自然敞开的小家——that住宅,澳大利亚"

▼走廊享有户外景观,corridors with view of outdoor landscape

一个向自然敞开的小家——that住宅,澳大利亚"

一个向自然敞开的小家——that住宅,澳大利亚"

▼主卧正对着游泳池,the master bedroom facing the swimming pool

一个向自然敞开的小家——that住宅,澳大利亚"

▼带有小圆窗的浴室,the bathroom with small round window

一个向自然敞开的小家——that住宅,澳大利亚"

一个向自然敞开的小家——that住宅,澳大利亚"

可持续性

sustainability.

正如我们的所有项目一样,可持续性是本项目的核心。在北面的窗户有最优的日照。所有的窗户都是双层的。西侧立面没有窗户,东面则采用了少量的玻璃。建筑各处均采用了高性能密封措施。主动调节的百叶窗和自然通风减少了对于制冷和供暖的需求。在后院的地下室有一个大水箱,用于储藏屋面排放的雨水,并用于灌溉和冲洗马桶。我们尽可能的采用本地的材料和设施。屋面上还装有太阳能板。

▼从二层的露台看向卧室,view of the bedroom

一个向自然敞开的小家——that住宅,澳大利亚"

一个向自然敞开的小家——that住宅,澳大利亚"

▼带有游泳池的后院成为家人相聚的美好空间,the rear yard with swimming pool

一个向自然敞开的小家——that住宅,澳大利亚"

▼夜景,night view

一个向自然敞开的小家——that住宅,澳大利亚"

一个向自然敞开的小家——that住宅,澳大利亚"

▼体量生成图解,the volume progressing

一个向自然敞开的小家——that住宅,澳大利亚"

一个向自然敞开的小家——that住宅,澳大利亚"

▼总平面图,siteplan

一个向自然敞开的小家——that住宅,澳大利亚"

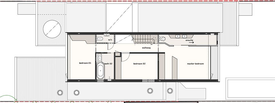
▼一层平面图,first floor plan

一个向自然敞开的小家——that住宅,澳大利亚"

▼二层平面图,second floor plan

一个向自然敞开的小家——that住宅,澳大利亚"

▼立面图,elevation

一个向自然敞开的小家——that住宅,澳大利亚"

▼剖面图,section

一个向自然敞开的小家——that住宅,澳大利亚"

  • 播放列表
剧情介绍

基地周边被大型住宅所占据,而业主则希望我们打造一个适当尺度的家。通过大面积的开敞区域以及与花园的紧密联系,这个适度大小的住宅显得宽敞而丰富。最终建成的住宅仅有附近房屋的一半大小,却在宜居性上毫不逊色。

▼从前院看向建筑,the exterior view from the garden

一个向自然敞开的小家——that住宅,澳大利亚"

一个向自然敞开的小家——that住宅,澳大利亚"

▼宽阔屋檐下的枫树,the maple tree encompassed by the eave

一个向自然敞开的小家——that住宅,澳大利亚"

世界上最大的住宅

the largest houses in the world.

澳大利亚有着世界上最大型的住宅。稳定的经济,野心勃勃的文化和相对平坦的地形使得澳大利亚人可以建造远超需要的住宅。墨尔本尤其是这样:开阔的地形、迅速增长的人口使得住宅从宜居区一直蔓延到了沙漠地带。为了给公众提供必需的基础设施和服务,如食物、饮水、电力、交通、医院和教育等,政府付出了高昂的代价,这一代价不仅仅是财政上的,还包括环境方面。庞大的住宅与澳大利亚城市气候是矛盾的,导致了供暖和冷气负荷的迅速增长。大型住宅以及随之造成的摊大饼式的城市发展导致对于私家车和相关的基础设施的依赖,这在目前是世界上最不环保的交通方式。而那些无法驾车出行的人群,如老人、小孩和残疾人等由于交通不便而处于被孤立的境地。在这些汽车川流不息的地方,步行和骑车也是危险的。

简而言之,大型住宅对于城市而言是一场灾难,对于我们的社区也同样是一场文化和社交的灾难。

▼面向庭院的书房,the study facing the front garden

一个向自然敞开的小家——that住宅,澳大利亚"

▼书房与客厅相连,也可以通过转动移动式隔墙成为一个独立的房间

一个向自然敞开的小家——that住宅,澳大利亚"

一个向自然敞开的小家——that住宅,澳大利亚"

一个向自然敞开的小家——that住宅,澳大利亚"

生活在社区中

living with community.

“我们(澳大利亚人)总是习惯于去私密场所而非公共场所,或是与社区里的其他人交流,而我认为这是错误的。”stuart white教授说道。

正如我们的许多很棒的业主一样,“that”住宅的业主急切的想要融入社区而非永久的将自己藏起来或是建一个堡垒。随着澳大利亚的住宅和文化变得越来越倾向于内向和保护性,建筑师反其道而行之。“that”住宅完全向公众和家人敞开自己。而与此同时,这个透明的住宅需要保持适度的私密性。因此我们在住宅上部设置了上升式百叶窗,让业主决定开敞的程度。你有多少次曾看见一个大落地窗,却被下降式百叶窗遮得密不透风?下降式百叶窗的缺点在于,除非你把它拉到底,否则你就无法保证私密性。而上升式的百叶窗则可以屏蔽来自街道的视线,却仍然可以望见花园和街道的景色。这使得人们可以自如的控制私密性的程度以及每个空间的光线。

▼开放的客厅,the living room with view of the rear garden

一个向自然敞开的小家——that住宅,澳大利亚"

一个向自然敞开的小家——that住宅,澳大利亚"

一个向自然敞开的小家——that住宅,澳大利亚"

一个向自然敞开的小家——that住宅,澳大利亚"

独处,相聚

alone, together.

我们大部分的作品都体现了“独处和相聚”的概念。用简单的话来说,我们希望在一个分享的空间里营造私密场所。我们绝非开放平面的忠实拥簇,但也反对将功能或是房间完全封闭的做法,而是试图在不同空间中创造宽松宜人的联系。“that”住宅表面上是开放的,但是内部的空间却可以打通、隔开或是半开放的。当家庭成员聚在客厅看卡通片的时候,也许有人想要独自在书房看会儿书,而另外两个人则想要围在餐桌旁讨论足球。全部人都在一个共享空间内,但是却不是一个嘈杂的开放空间,也不是一系列封闭的小隔间。“that”住宅使得家人们在任何时候都可以选择参与互动或是享受独处时光。

如果你的空间能够适应你的情绪、天气、时辰和用途,那么你就不会需要很多房间了。适应型的、复杂的空间使得我们可以在最大程度上利用我们的空间,而不需要一个庞大的建筑,并且可以有一个宽敞的户外空间和花园。

▼与餐厅相连的小客厅位于另一侧,the lounge on the other side

一个向自然敞开的小家——that住宅,澳大利亚"

▼起居空间与餐厅及厨房相连,the dining area next to the lounge

一个向自然敞开的小家——that住宅,澳大利亚"

一个向自然敞开的小家——that住宅,澳大利亚"

一个向自然敞开的小家——that住宅,澳大利亚"

一个向自然敞开的小家——that住宅,澳大利亚"

一个向自然敞开的小家——that住宅,澳大利亚"

对抗

defiance.

“that”住宅绝非一个小家。它既不是一个解决方案,也不是澳大利亚住宅的“新原型”。尽管位于环境之中,住宅却是对抗性的。“that”住宅是一个有意为之的设计,仅仅用了邻居一半的土地,却建造出了一个在空间、功能和品质方面丝毫不逊色的住宅。这种不满足或是担心有所遗漏的焦虑会带给人真正的恐惧。而好的设计和规划,适度尺度的房屋却不是折衷方案。事实上,带有与花园和自然充分接触的内部空间,一个精心设计的小住宅远胜于它周围那些臃肿不堪缺乏考虑的邻居们。

▼穿孔铝板制作的楼梯增添了轻盈的感觉,the stairs made from perforated alumni panel

一个向自然敞开的小家——that住宅,澳大利亚"

一个向自然敞开的小家——that住宅,澳大利亚"

▼带有落地窗的卧室,the bedroom with full height window

一个向自然敞开的小家——that住宅,澳大利亚"

▼走廊享有户外景观,corridors with view of outdoor landscape

一个向自然敞开的小家——that住宅,澳大利亚"

一个向自然敞开的小家——that住宅,澳大利亚"

▼主卧正对着游泳池,the master bedroom facing the swimming pool

一个向自然敞开的小家——that住宅,澳大利亚"

▼带有小圆窗的浴室,the bathroom with small round window

一个向自然敞开的小家——that住宅,澳大利亚"

一个向自然敞开的小家——that住宅,澳大利亚"

可持续性

sustainability.

正如我们的所有项目一样,可持续性是本项目的核心。在北面的窗户有最优的日照。所有的窗户都是双层的。西侧立面没有窗户,东面则采用了少量的玻璃。建筑各处均采用了高性能密封措施。主动调节的百叶窗和自然通风减少了对于制冷和供暖的需求。在后院的地下室有一个大水箱,用于储藏屋面排放的雨水,并用于灌溉和冲洗马桶。我们尽可能的采用本地的材料和设施。屋面上还装有太阳能板。

▼从二层的露台看向卧室,view of the bedroom

一个向自然敞开的小家——that住宅,澳大利亚"

一个向自然敞开的小家——that住宅,澳大利亚"

▼带有游泳池的后院成为家人相聚的美好空间,the rear yard with swimming pool

一个向自然敞开的小家——that住宅,澳大利亚"

▼夜景,night view

一个向自然敞开的小家——that住宅,澳大利亚"

一个向自然敞开的小家——that住宅,澳大利亚"

▼体量生成图解,the volume progressing

一个向自然敞开的小家——that住宅,澳大利亚"

一个向自然敞开的小家——that住宅,澳大利亚"

▼总平面图,siteplan

一个向自然敞开的小家——that住宅,澳大利亚"

▼一层平面图,first floor plan

一个向自然敞开的小家——that住宅,澳大利亚"

▼二层平面图,second floor plan

一个向自然敞开的小家——that住宅,澳大利亚"

▼立面图,elevation

一个向自然敞开的小家——that住宅,澳大利亚"

▼剖面图,section

一个向自然敞开的小家——that住宅,澳大利亚"

猜你喜欢
亚洲怪谈 第二季 0分 2021
亚洲怪谈 第二季
宋芸桦,吴慷仁,森崎温,高桥春织,元冬树,木村多江,詹尼斯·奥普拉斯特,Dolly de Leon,莉迪亚·坎多,王欣,林明伦,Ethan Ng Kai En
卓别林 8.6分 2020
卓别林
小罗伯特·唐尼,杰拉丁·卓别林,保罗·瑞斯,约翰·肖,莫伊拉·凯利,安东尼·霍普金斯,丹·艾克罗伊德,玛丽莎·托梅,佩内洛普·安·米勒,凯文·克莱恩,玛丽
维多利亚第一季 8.4分 2016
维多利亚第一季
珍娜·科尔曼,卢夫斯·塞维尔,凯瑟琳·弗莱明,保罗·瑞斯,彼得·弗斯,汤姆·休斯,大卫·奥克斯,汤米·奈特,伊芙·迈勒斯,阿历克斯·杰宁斯,安德鲁·比克内
妙警贼探第一季 8.8分 2009
妙警贼探第一季
马特·波莫,蒂姆·迪凯,威利·加森,蒂凡妮·西森,沙利夫·阿特金斯,玛莎·托马森
两个世界之间 7.8分 2016
两个世界之间
克里斯·梅森 / Hannah Britland / 卢锡安·拉维斯科特 / Mark Womack / Bethan Wright
中央舞台 8.2分 2000
中央舞台
彼得·盖勒,Ilia Kulik,佐伊·索尔达娜,阿曼达·舒尔,Susan May,戴布拉·莫克,Ethan Stiefel,萨沙·拉德斯基,唐纳·墨菲,Julie Kent,艾恩·贝利,Shakiem Evans,Elizabeth Hubbard
敞开的房子 3.5分 2018
敞开的房子
迪兰·明奈特,阿隆·艾布拉姆斯,马特·安吉,沙利夫·阿特金斯,莱格·帕克,保罗·瑞,凯蒂·瓦德尔,Ethan,苏珊娜·寇特
我不好惹2:贝琪之怒 5.5分 2023
我不好惹2:贝琪之怒
露露·威尔逊
致命催眠 0分 2021
致命催眠
凯特·西格尔,杰森·奥玛拉,杜勒·希尔
影片评论
评论加载中...
恐怖片热播排行
1勾魂降头 HD
2诡魔童 已完结
3阴阳路6:凶周刊 HD国语
4黑车 HD
5骷髅头:面具 BD高清
6肉食日 HD
7细菌浩劫 HD中字
8死神来了6:血脉诅咒 HD
9炼狱机器 已完结
10非凡 已完结
11致命逃亡 HD
12鬼屋大电影 HD
13德古拉 HD
14伏魔济公 已完结
15暗影 HD

Copyright © 2024-2025 All Rights Reserved

  • 首页
  • 会员
  • 留言
  • 顶部
数码宝贝第一季(..   奇妙萌可第二季   豺狼的日子第一季   迪迦奥特曼(普通..   憧憬成为魔法少女   精灵宝可梦第一季..   数码宝贝第一季 ..   怪医文三块   模范出租车3   白日焰火   美国人   人鱼的旋律第一季  
加载中...